|
中华人民共和国国家标准
包装容器 钢桶 第3部分:最小总容量212L、216.5L和230L闭口钢桶
GB/T 325.3-2010
Packaging container-Steel drums-
Part 3 : Non-removable head(tight head) drums with a minimum total capacity of 212 L,216. 5 L and 230 L
(IS0 15750-2 : 2002 , Packaging-Steel drums-
Part 2 :Non-removable head(tight head) drums with a minimum total capacity of 212 L,216. 5 L and 230 L,MOD)
2010-09-26 发布,2011-03-01 实施
中华人民共和国国家质量监督检验检疫总局、中国国家标准化管理委员会 发布
前言
GB/T 325《包装容器 钢桶》分为5个部分:
——第1部分:通用技术要求;
——第2部分:最小总容量208 L、210 L和216.5 L全开口钢桶;
——第3部分:最小总容量212 L、216.5 L和230 L闭口钢桶;
——第4部分:200 L及以下全开口钢桶;
——第5部分:200 L及以下闭口钢桶。
本部分为GB/T 325的第2部分。
本部分与IS0 15750-2:2002《包装 钢桶 第2部分:最小总容量212 L、216.5 L和230216.5 L闭口钢桶》(英文版)的一致性程度为修改采用,主要差异如下:
——按照国内的实际情况,术语和定义采用GB/T 4122.4中的规定,钢桶材料符合GB/T 325.1的规定,封闭器材料符合GB/T 13251的规定;
——删除了工艺方面的内容;
——删除了对钢桶排空率的要求;
——删除了对闭口钢桶规格型号的表示方式的规定;
——删除了附录A,闭口钢桶容量的测量方法;
——删除了附录B,闭口钢桶排空率的测试方法。
本部分由全国包装标准化技术委员会提出并归口。
本部分起草单位:国家包装产品质量监督检验中心(广州)、杭州中粮包装有限公司、无锡市四方制桶有限公司。
本部分主要起草人:蔡依军、卢明、凌光耀、朱丽萍、鞠春明、章晓尚、郭克文、王晓茹、罗晓茵、姚晓庆、赵季臻、黄广炽。
包装容器 钢桶 第3部分:最小总容量212L、216.5L和230L闭口钢桶
1 范围
GB/T 325的本部分规定了最小总容量为212L、216.5L和230L闭口钢桶的结构和尺寸。
2 规范性引用文件
下列文件中的条款通过GB/T325的本部分的引用而成为本部分的条款。凡是注日期的引用文件,共随后所有的修改单(不包括斟误的内容)或修订版均不适用于本部分,然而,鼓励根据本部分达成协议的各方研究是否可使用这些文件的最新版本。凡是不注日期的引用文件,其最新版本适用于本部分。
GB/T 325.1 包装容器 钢桶 第1部分:通用技术要求
GB/T 4122.4 包装术语 第4部分:材料与容器
GB/T 13251 包装 钢桶 嵌入式法兰封闭器(GB/T 13251-2008,ISO 15750-3:2002,NEQ)
3 术语和定度
GB/T 4122.4 确立的术语和定义适用于GB/T 325 的本部分。
4 规格尺寸
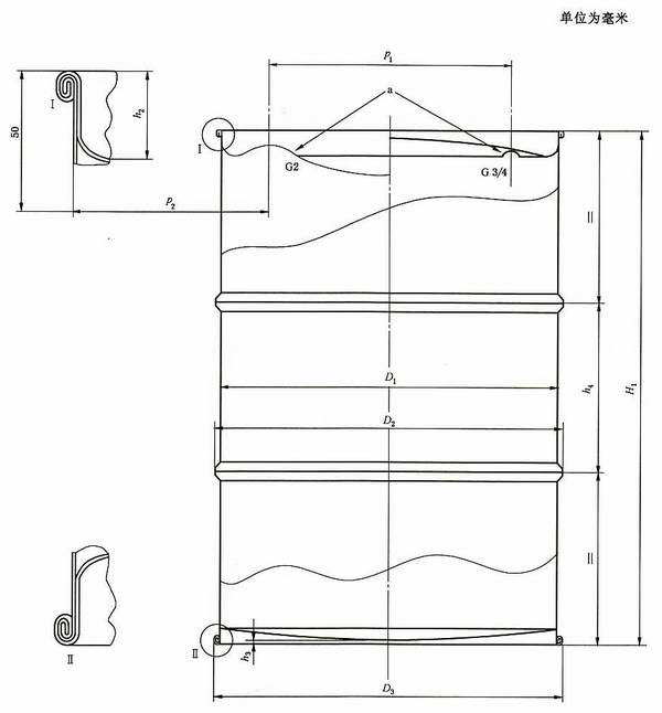
4.1 钢桶尺寸标注如图1所示,A型、B型和C型桶的具体尺寸见表1。

a——封闭器不得高于桶盖卷封边缘。
注:桶盖可以是凸面、平面或凹面。
图1 闭口钢桶
表1 闭口钢桶规格尺寸(单位为毫米)
尺寸符号 |
项目说明 |
A型桶
|
B型桶 |
C型桶 |
总容量 |
最小210L |
最小216.5L |
最小210L |
最小216.5L |
最小208L |
D1 |
内径 |
571.5±2 |
571.5±2 |
571.5±2 |
571.5±2 |
566±2 |
D2 |
环筋外径 |
≤585 |
≤585 |
≤596 |
≤596 |
≤585 |
D3 |
卷封边缘外径 |
≤585 |
≤585 |
≤593 |
≤593 |
≤585 |
H1 |
桶全高 |
878±5 |
932±5 |
878±5 |
932±5 |
890±5 |
h2 |
桶盖深a |
- |
- |
- |
- |
- |
h3 |
桶底间隙 |
≥4 |
≥4 |
≥4 |
≥4 |
≥4 |
h4 |
环筋间距 |
280±3 |
280±3 |
280±3 |
280±3 |
300±3 |
p1 |
注入口中心至透气口中心的距离 |
444±6(或451±1) |
444±6(或451±1) |
444±6(或451±1) |
444±6(或451±1) |
400±6 |
P2 |
注入口G2(50mm)中心至桶外壁的距离,离桶顶约50mm处测量 |
72±3 |
72±3 |
72±3 |
72±3 |
94±3 |
按照GB/T 13251 具有螺纹G2封闭器的嵌入应该使中心线尽量垂直。
注1:对于桶盖为凹面的钢桶,为了达到规定的容量,桶全高H1可以增加4 mm。
注2:表中3种类型的钢桶中,A型桶和C型桶的最佳的外径应符合一个标准集装箱能并排堆放4个钢桶。
|
|
4. 2 钢板厚度为0.6 mm~l.6 mm。
5 材料
5.1 钢桶材料符合GB/T 325.1的规定,
5.2 封闭器材料符合GB/T 13251的规定。
6 结构
6.1 应符合GB/T 325.1的规定。
6.2 桶身、桶盖和桶底应该根据钢桶用途,用厚度足够的钢板制成。
6.3 桶身通过涨筋或滚压两道环筋增加强度,位置如图1所示。也可以采用不同结构的环筋和波纹。
6.4 桶盖及桶底的形状可以是凸面、平面或凹面。
6.5 封闭器装在桶盖上的位置如图1所示。可根据供需协议安装注入口一个或注人口和透气口各一个。
6.6 封闭器螺纹应符合GB/T 13251中螺纹G3/4和螺纹G2的规定。
6.7 除供需双方协议规定外,封闭器结构应符合GB/T 13251的规定。
6.8 封闭器除非自身有防漏性能,否则应配置衬圈/垫圈或其他密封元件。
6.9 金属或塑料桶塞应配置合适材料的衬圈/垫圈。
|